Приглашаем к общению жителей нашего дома в социальных сетях и в чатах мессенджеров.

Дизайн и ремонт в ЖК Авеню77 (White & Black Design Studio)

Модераторы: SMBV, Anton_77

Аватара пользователя

Автор темы
olga C
Сообщения: 1535
Зарегистрирован: 28 ноя 2010, 10:50
Этаж: 27
Корпус: 2
Секция: 2
№ квартиры на площадке: 2
№ квартиры в доме: 759
Состояние дел: Живу
Собственность: Нет
Контактная информация:

Re: Дизайн и ремонт в ЖК Авеню77 (White & Black Design Studio)

Сообщение olga C »

Обшивка стен спальни и гостиной 4 этажа шпоном дуба.

Изображение
Изображение
Изображение
Изображение
Последний раз редактировалось olga C 06 окт 2016, 11:21, всего редактировалось 1 раз.
Аватара пользователя

Автор темы
olga C
Сообщения: 1535
Зарегистрирован: 28 ноя 2010, 10:50
Этаж: 27
Корпус: 2
Секция: 2
№ квартиры на площадке: 2
№ квартиры в доме: 759
Состояние дел: Живу
Собственность: Нет
Контактная информация:

Re: Дизайн и ремонт в ЖК Авеню77 (White & Black Design Studio)

Сообщение olga C »

Монтаж мраморного панно в гостиной 2 этажа.
Редкий мрамор teak wood имитирует дерево.

Изображение
Изображение
Изображение
Аватара пользователя

Автор темы
olga C
Сообщения: 1535
Зарегистрирован: 28 ноя 2010, 10:50
Этаж: 27
Корпус: 2
Секция: 2
№ квартиры на площадке: 2
№ квартиры в доме: 759
Состояние дел: Живу
Собственность: Нет
Контактная информация:

Re: Дизайн и ремонт в ЖК Авеню77 (White & Black Design Studio)

Сообщение olga C »

Квартиру отмыли после ремонта. Кухня - гостиная.
Контакты людей по уборке могу дать в личку.

Изображение
Изображение
Изображение
Изображение
Изображение
Изображение
Аватара пользователя

Автор темы
olga C
Сообщения: 1535
Зарегистрирован: 28 ноя 2010, 10:50
Этаж: 27
Корпус: 2
Секция: 2
№ квартиры на площадке: 2
№ квартиры в доме: 759
Состояние дел: Живу
Собственность: Нет
Контактная информация:

Re: Дизайн и ремонт в ЖК Авеню77 (White & Black Design Studio)

Сообщение olga C »

Фото санузла.

Изображение
Изображение
Изображение
Изображение
Изображение
Изображение
Последний раз редактировалось olga C 06 окт 2016, 11:20, всего редактировалось 1 раз.
Аватара пользователя

Автор темы
olga C
Сообщения: 1535
Зарегистрирован: 28 ноя 2010, 10:50
Этаж: 27
Корпус: 2
Секция: 2
№ квартиры на площадке: 2
№ квартиры в доме: 759
Состояние дел: Живу
Собственность: Нет
Контактная информация:

Re: Дизайн и ремонт в ЖК Авеню77 (White & Black Design Studio)

Сообщение olga C »

Наш новый проект в конкурсе «ILIKE КОВЁР – ковры ручной работы II» на Pinwin !
Эскиз выполнен маслом на холсте.

http://www.pinwin.ru/konkurs.php?kact=2 ... rbid=16637

Изображение
Аватара пользователя

Автор темы
olga C
Сообщения: 1535
Зарегистрирован: 28 ноя 2010, 10:50
Этаж: 27
Корпус: 2
Секция: 2
№ квартиры на площадке: 2
№ квартиры в доме: 759
Состояние дел: Живу
Собственность: Нет
Контактная информация:

Re: Дизайн и ремонт в ЖК Авеню77 (White & Black Design Studio)

Сообщение olga C »

Моя работа вышла в финал Pinwin 9 !
Квартира расположена в ЖК Авеню77.

http://www.pinwin.ru/konkurs.php?kact=2 ... rbid=16459

Изображение
Аватара пользователя

Автор темы
olga C
Сообщения: 1535
Зарегистрирован: 28 ноя 2010, 10:50
Этаж: 27
Корпус: 2
Секция: 2
№ квартиры на площадке: 2
№ квартиры в доме: 759
Состояние дел: Живу
Собственность: Нет
Контактная информация:

Re: Дизайн и ремонт в ЖК Авеню77 (White & Black Design Studio)

Сообщение olga C »

Как декор преображает интерьер или подбор текстиля и аксессуаров.

Изображение
Аватара пользователя

Автор темы
olga C
Сообщения: 1535
Зарегистрирован: 28 ноя 2010, 10:50
Этаж: 27
Корпус: 2
Секция: 2
№ квартиры на площадке: 2
№ квартиры в доме: 759
Состояние дел: Живу
Собственность: Нет
Контактная информация:

Re: Дизайн и ремонт в ЖК Авеню77 (White & Black Design Studio)

Сообщение olga C »

Монтаж душевой перегородки Kermi в санузле.
Перегородка сделана под заказ в Германии из-за нестандартной длины (2,20 м), 2 неподвижных сегмента по бокам и 2 раздвижные двери в центре.

Изображение
Аватара пользователя

Автор темы
olga C
Сообщения: 1535
Зарегистрирован: 28 ноя 2010, 10:50
Этаж: 27
Корпус: 2
Секция: 2
№ квартиры на площадке: 2
№ квартиры в доме: 759
Состояние дел: Живу
Собственность: Нет
Контактная информация:

Re: Дизайн и ремонт в ЖК Авеню77 (White & Black Design Studio)

Сообщение olga C »

Обшивка колонн шпоном дуба.

Изображение
Изображение
Изображение
Изображение
Изображение
Изображение
Аватара пользователя

Автор темы
olga C
Сообщения: 1535
Зарегистрирован: 28 ноя 2010, 10:50
Этаж: 27
Корпус: 2
Секция: 2
№ квартиры на площадке: 2
№ квартиры в доме: 759
Состояние дел: Живу
Собственность: Нет
Контактная информация:

Re: Дизайн и ремонт в ЖК Авеню77 (White & Black Design Studio)

Сообщение olga C »

Продолжение обшивки колонн.

Изображение
Изображение
Аватара пользователя

Автор темы
olga C
Сообщения: 1535
Зарегистрирован: 28 ноя 2010, 10:50
Этаж: 27
Корпус: 2
Секция: 2
№ квартиры на площадке: 2
№ квартиры в доме: 759
Состояние дел: Живу
Собственность: Нет
Контактная информация:

Re: Дизайн и ремонт в ЖК Авеню77 (White & Black Design Studio)

Сообщение olga C »

Давно хотела заняться промышленным дизайном.
Представляем Вам комод по авторским чертежам для нового объекта.
Если Вам понравиться, то можем изготовить для Вас.
Доступны различные цвета отделки по RAL, а также другие материалы для отделки фасада.

Изображение
Аватара пользователя

Автор темы
olga C
Сообщения: 1535
Зарегистрирован: 28 ноя 2010, 10:50
Этаж: 27
Корпус: 2
Секция: 2
№ квартиры на площадке: 2
№ квартиры в доме: 759
Состояние дел: Живу
Собственность: Нет
Контактная информация:

Re: Дизайн и ремонт в ЖК Авеню77 (White & Black Design Studio)

Сообщение olga C »

Ремонт 3-х комн. квартиры, 80 м2.
Строители заказчика.

Изображение
Изображение
Изображение
Изображение
Изображение
Аватара пользователя

Автор темы
olga C
Сообщения: 1535
Зарегистрирован: 28 ноя 2010, 10:50
Этаж: 27
Корпус: 2
Секция: 2
№ квартиры на площадке: 2
№ квартиры в доме: 759
Состояние дел: Живу
Собственность: Нет
Контактная информация:

Re: Дизайн и ремонт в ЖК Авеню77 (White & Black Design Studio)

Сообщение olga C »

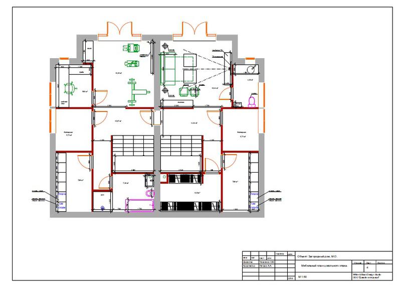
Мебельный план 2-х таунхаусов, объединенных по просьбе клиента.
Для этого на каждом этаже будет прорублен дверной проем с усилением несущей стены.

Изображение

Изображение

Изображение
Аватара пользователя

Автор темы
olga C
Сообщения: 1535
Зарегистрирован: 28 ноя 2010, 10:50
Этаж: 27
Корпус: 2
Секция: 2
№ квартиры на площадке: 2
№ квартиры в доме: 759
Состояние дел: Живу
Собственность: Нет
Контактная информация:

Re: Дизайн и ремонт в ЖК Авеню77 (White & Black Design Studio)

Сообщение olga C »

Моя работа вышла в финал Pinwin 9 !
Квартира расположена в ЖК Авеню77.

http://www.pinwin.ru/konkurs.php?kact=2 ... rbid=16459

Изображение
Аватара пользователя

Автор темы
olga C
Сообщения: 1535
Зарегистрирован: 28 ноя 2010, 10:50
Этаж: 27
Корпус: 2
Секция: 2
№ квартиры на площадке: 2
№ квартиры в доме: 759
Состояние дел: Живу
Собственность: Нет
Контактная информация:

Re: Дизайн и ремонт в ЖК Авеню77 (White & Black Design Studio)

Сообщение olga C »

Поклеили обои в детской спальне.

Изображение
Ответить